常州桑拿论坛(最新),51龙凤茶楼论坛网常州一品楼品凤楼论坛qm ,一品楼品凤楼论坛最新动态栖凤阁论坛(全国信息) ,全国聚凤阁论坛官网入口

欢迎访问东莞市振华家具有限公司网站!

学校/企业指定的铁床生产厂家专注于双层铁床,上下铺铁床及学生公寓床定制

扫码关注

24小时服务热线135-3219-3210180-2825-0556
  • 学生公寓床
  • 学生宿舍床
  • 学生铁床生产厂家

学生宿舍公寓床厂商

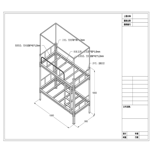
产品介绍:学生宿舍公寓床厂商技术要求 一、铁床部份的材质:(规格W6380*970*H2080mm) 1 立柱:采用优质冷轧钢板经特制成型线轧制而成,其立面为中空异形(方便双面喷涂,不能用方管或圆管),立柱正面为斜边形设计,起到防撞作用,并有4条加强筋,立面成型后尺寸为78mm*78mm,材料厚度为1 2mm

服务热线:180-2825-0556
振华家具

产品优势 / Advantage

学生宿舍公寓床厂商
振华家具

技术参数 / Parameter

产品名称
学生宿舍公寓床厂商
产品规格
公寓床 [尺寸可任意定制]
适用范围
学生宿舍、员工宿舍
产品净重
50kg
产品包装
纸箱
产品型号
公寓床
产品类型
单体学生宿舍公寓床
产品厚度
1.2mm
产品颜色
定制
产品寿命
10年
振华家具

产品详细介绍 / Introduce

学生宿舍公寓床厂商技术要求

一、铁床部份的材质:(规格W6380*970*H2080mm)

   1. 立柱:采用优质冷轧钢板经特制成型线轧制而成,其立面为中空异形(方便双面喷涂,不能用方管或圆管),立柱正面为斜边形设计,起到防撞作用,并有4条加强筋,立面成型后尺寸为78mm*78mm,材料厚度为1.2mm.

2.长横梁:采用优质冷轧钢板经特制成型线轧制而成,其立面为中空异形(方便双面喷涂,不能用方管),正面有两条加强筋,底部为圆弧形设计,起到防撞作用,立面成型后尺寸为106mm*41mm,材料厚度为1.2mm.

3.短横梁:采用优质冷轧钢板经特制成型线轧制而成,其立面为中空异形,方便双面喷涂,不能用方管),正面有两条加强筋,底部为圆弧形设计,起到防撞作用,立面成型后尺寸为106mm*41mm,材料厚度为1.1mm.

4、支撑:采用50*25*0.8mm厚优质方管制作。

5、前护栏:采用¢19*0.9mm厚优质圆弯制作而成,中间加3根竖管,横梁上面需冲孔,竖管需插入横梁底部焊接,以增加护栏强度,高度为230mm.长度为1170mm.

6、侧护栏:采用¢19*1.0mm厚优质管材焊接而成。

7、楼梯:支架采用20*40*1.0mm旦管数控成型焊接而成,脚踏板采用1.2mm厚优质冷轧钢板经冲压而成,大小为65mm*300mm,踏板下面需加一根25*25*1.0mm厚优质方管,需与楼梯支架焊接,表面需有凹凸纹路,可以起到防滑作用.

8.连接处挂钩:经冲床冲压成L型,需有三个连接卡口,成型后尺寸为198*28*28(mm),材料厚度为2.0(mm)。

9.铁床部份焊接采用二氧化碳?;ず附?,铁板表面经除油,去锈,磷化静电喷粉.高温固化而成。

10.整张床连接部份采用挂件连接,不采用螺丝连接,每张床可承重400kg。

24小时服务热线:180-2825-0556

客服热线:135-3219-3210 手机:18028250556

地址:广东省东莞市桥头镇庆安街18号101室

备案号:粤ICP备19160173号
技术支持:振华家具

  • 微信扫一扫
    联系我们
  • 微信扫一扫
    手机网站
  • ?