常州桑拿论坛(最新),51龙凤茶楼论坛网常州一品楼品凤楼论坛qm ,一品楼品凤楼论坛最新动态栖凤阁论坛(全国信息) ,全国聚凤阁论坛官网入口

欢迎访问东莞市振华家具有限公司网站!

学校/企业指定的铁床生产厂家专注于双层铁床,上下铺铁床及学生公寓床定制

扫码关注

24小时服务热线135-3219-3210180-2825-0556
  • 学生公寓床
  • 学生宿舍床
  • 学生铁床生产厂家
当前位置:首页 > 新闻·案例 > 行业动态

公寓床铁床厂家能定制设计吗?

来源:发布时间:2022-07-16 09:13:00点击率:

公寓床铁床厂家能定制设计吗?

一般来说,大部分能够生产公寓床铁床厂家,都拥有一个设计部,专门为一些学?;蚬こУ募逅奚峤懈脑旎蚨ㄖ粕杓?,其中,不泛一些床或家具的配置,这些也都标志着一个工厂的服务完整性。


也许,很多人都在苦于找不到一张合适的宿舍床时,却有一部分人都已经从公寓床铁床厂家那里,定制设计了一批批学生们或员工们喜欢的家具以及床;而这一切,都已不再是秘密,这也是宿舍家具厂对外的一个全新设计理念。


在这里,我也带了几张公寓床铁床厂家定制设计的图片,让大家一起来看看,是否与当前的宿舍环境相符合,是否适用于学生宿舍和员工宿舍,下边请看:

公寓床铁床厂家能定制设计吗?

这就是我们前段时间,找公寓床铁床厂家设计的一款四人间的宿舍床,从这个方向看去,阳光十分明朗,整个宿舍的环境尽在眼下,一边两个双层铁床,另配置两个衣柜,有的是木柜,有的是铁柜,可根据个人喜好定制设计,当然,我们选择的是铁柜,因为用的是铁床,自然要匹配一样的材质!

公寓床铁床厂家能定制设计吗?

再当我们看看正面的公寓床铁床,它虽是一个连体的,但是它从定制设计上面,做成了一个踏板楼梯,以安全为主题,才有了这么一个设计,同时,也便于宿舍管理,无论是打扫卫生,还是整理衣物,柜子和床都是比较相匹配的款式。

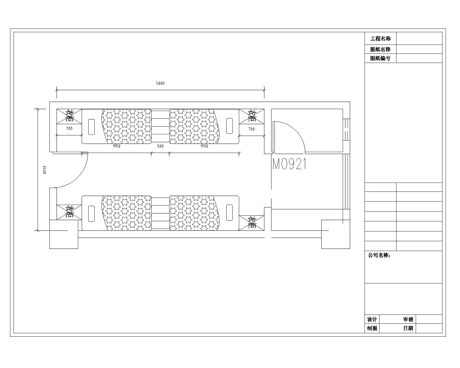
公寓床铁床厂家能定制设计吗?

上图中就是我们在定制设计公寓床铁床之时,所绘制的宿舍布局图,厂家也是根据这个图来拼凑或设计,一个合理的尺寸就是从中设计出来的!


所以,我们在需要公寓床铁床厂家定制设计之时,可以让厂家来测量并绘制布局图,然后,就是定制设计样图和样品,以供我们做出一个正确的选择!

24小时服务热线:180-2825-0556

客服热线:135-3219-3210 手机:18028250556

地址:广东省东莞市桥头镇庆安街18号101室

备案号:粤ICP备19160173号
技术支持:振华家具

  • 微信扫一扫
    联系我们
  • 微信扫一扫
    手机网站
  • ?